廣州南方學院商業廣場設計方案 優益廣場
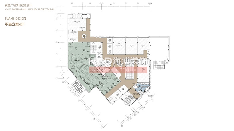
本項目位于廣州從化南方學院,原平面布置入口狹長,體驗感欠佳,無充分考慮行走動線,觀感視線的合理性,酒店入口標識不明顯且私密性稍差。HBD海博裝飾設計團隊結合實際情況擴大休閑區域,結合藝術裝置形成年輕活力的氛圍。聚集區設置成公共展覽區,與前后兩聚集區域形成聯動,起到很好緩沖作用且易將人群引流至后方商鋪,且動線合理。下面一起來欣賞廣州南方學院商業廣場設計項目方案賞析吧。

廣州南方學院商業廣場設計方案 優益廣場

廣州南方學院商業廣場設計方案 優益廣場

廣州南方學院商業廣場設計方案 優益廣場

廣州南方學院商業廣場設計方案 優益廣場

廣州南方學院商業廣場設計方案 優益廣場

廣州南方學院商業廣場設計方案 優益廣場

廣州南方學院商業廣場設計方案 優益廣場

廣州南方學院商業廣場設計方案 優益廣場

廣州南方學院商業廣場設計方案 優益廣場

廣州南方學院商業廣場設計方案 優益廣場

廣州南方學院商業廣場設計方案 優益廣場

廣州南方學院商業廣場設計方案 優益廣場

廣州南方學院商業廣場設計方案 優益廣場

廣州南方學院商業廣場設計方案 優益廣場

廣州南方學院商業廣場設計方案 優益廣場

廣州南方學院商業廣場設計方案 優益廣場

廣州南方學院商業廣場設計方案 優益廣場

廣州南方學院商業廣場設計方案 優益廣場

廣州南方學院商業廣場設計方案 優益廣場

廣州南方學院商業廣場設計方案 優益廣場
- 上一案例:廣州商業綜合體規劃設計 東南新街市
- 下一案例:沒有啦
137-1150-4887
在線咨詢
